Интерьер 4х комнатной квартиры — 80 фото изумительного дизайна
Наверное нет такого человека, кто не мечтал бы о покупке просторной 4-х комнатной квартиры, обустроить которую можно креативно, весьма эффективно.
Чаще всего строится современный дизайн четырехкомнатной квартиры по какому-то из ниже освещенных направлений.

Первое направление – новая планировка и избавление от межкомнатных перегородок, в результате чего гуляй душа и обустраивай на свой вкус, а второе направление, это максимально рациональное использование той площади, что есть, чтобы каждый домочадец не был обделен.
Хозяева квартиры, создавая с нуля дизайн, должны пользоваться всеми теми принципами, которыми пользуются владельцы малогабаритного жилья.
Если в квартире, где 4 комнаты, живет семья с детками, то не стоит переживать за «сантиметры» площади и их потерю. Возможно оформление детской комнаты, гостиной, а также спальни и даже рабочей зоны.

Планируя дизайн интерьера четырехкомнатной квартиры, важно деление имеющегося пространства на зоны, а также не обойтись без выделения места для работы и спокойного отдыха. Общие места пользования – прихожая, кухня, ванная и туалет, при желании даже гостиная комната
Взрослая спальная и детская должны быть отдалены одна от другой. В коридоре возможно оборудовать место для хранения вещей
Общие места пользования – прихожая, кухня, ванная и туалет, при желании даже гостиная комната. Взрослая спальная и детская должны быть отдалены одна от другой. В коридоре возможно оборудовать место для хранения вещей.
Стиль и цвет должны быть едины
Выбор цвета
Квартира может быть оформлена любыми красками, но стоит учитывать размер каждой комнаты в отдельности, то, как расположены окна и какое естественное освещение.
Если ориентация северная, то выбираются теплые тона, если же южная, то стоит отдать предпочтение использованию холодной палитры.

Пространство может быть зонировано сочетанием разных цветовых схем.

Яркие цвета возбуждают нервную систему, и потому должны быть использованы в активных зонах, например, в гостиной, детской или на кухне.
Холодные цвета весьма успокаивающе действуют на нервную систему, и посему используется в оформлении санузла, спальной.
Цвета используют для создания иллюзии, и потому ними выполняется коррекция геометрии пространства. Так вот, холодная палитра увеличивает пространство, теплая привносит в помещение уют.

Стиль
Все аспекты дизайна определены тем, какой стиль оформления. Хозяева, согласно стилю, принимают решение, нужна ли иная планировка четырехкомнатной квартиры или же можно обойтись без нее.
Ключевые направления в оформлении:
Классика – формы и линии четкие, прослеживается сдержанность, симметричность. Не обойтись без перегородок, стандартных распашных дверей, что крадут место.

Современность – прослеживается асимметрия, контрасты, динамика. Комнаты чаще всего объединены, перегородки раздвижного типа вместо привычных дверей, цвет и свет используются для зонирования.
Не бойтесь по прошествии времени менять какие-то базовые линии ранее выбранного стиля, потому как свойственно меняться человеку, и менять то пространство, что в его окружении.
Важно добиться целостности восприятия новой картинки, чтобы баланс был непоколебимым
Зонирование
Шторы используют легкие, полупрозрачные, которые не пропускают свет.
Точечная подсветка используется в рабочей зоне, декоративные осветительные приборы должны быть использованы в зоне для отдыха.

Арки экономят место, подчеркивая стиль интерьера четырехкомнатной квартиры.
Мебель. Барная стойка на кухне, диван отделяют друг от друга столовую зону от рабочей. При помощи шкафа в спальной возможно разделение места для сна и туалетного столика.
Тренды декорирования:
- Стеклянная перегородка.
- Вертикальное озеленение.
- Виниловые наклейки.
- Фотообои украшают интерьер 4х комнатной квартиры, придавая объема.
- При помощи зеркал комната наполняется светом, делается объемнее.

У вас просторная квартира на 4 комнаты и вам предстоит масштабный ремонт? За что хвататься?
Полистайте фото интерьера 4х комнатной квартиры на страницах дизайнеров, на специализированных сайтах, выберите приемлемый для вас стиль оформления, добавьте аксессуаров и получите завершенный образ
Все просто! Конечный результат, что важно понимать, это состояние гармонии в вашем доме
datahomes.ru
Перепланировочные работы
Довольно часто в квартирах сегодня владельцы затевают работы по переобустройству территории. Это обусловлено желанием сделать жилище более комфортным. Перепланировка четырехкомнатной квартиры в типовом доме серии П-3М предполагает проделывание прохода в несущей стене между гостевой и кухонной зонами. П-3М — это строение, где этажность варьируется от 9 до 17 этажей.

Проход из одной комнаты в другую разрешено делать не более 110 сантиметров. Но даже благодаря такому узкому промежутку конструктивный дизайн всего помещения сразу меняется. Теперь попадать в соседнее помещение гораздо удобнее и быстрее, а пространство кажется зрительно больше, наполняя обе комнаты светом. Вариант переделки, где кухня объединяется с комнатой общего назначения, не приемлем, если кухонная зона оборудована плитой, работающей на газу.
Альтернативной возможностью полному сносу стен является обустройство дверного проема дверью, передвигающейся на роликах.
В таких апартаментах можно также переобустроить балконы, которых здесь два. Один, со стороны гостиной дизайнеры рекомендуют переобустроить под зону для отдыха. Она может быть представлена небольшим столиком и удобными компактными пуфами, чтобы теплыми вечерами, смотря в окна на вечерний закат, можно было комфортно отдохнуть за чашкой чая. Вторую лоджию, в спальне можно отвести под систему хранения. Здесь целесообразно разместить высокие шкафы и полочки, на которых расположатся все вещи. Конечно, если этаж, на котором находится переделываемая квартира, невысокий, например, 1-й или 2-й, то обустраивать на балконе участок для отдыха не совсем уместно, так как посторонние взгляды и шум будут мешать полноценному отдыху.
Если немного урезать размеры прихожей, то можно расположить дополнительную гардеробную.

Особенности брежневок
Брежневка – это жилой дом, получивший такое название из-за того, что основная застройка пришлась на время правления Л. И. Брежнева. Масштабная стройка началась в связи увеличением населения в городах. Необходимы было быстро и с минимальными усилиями, затратами, расселить много советских семей.
У брежневки года постройки приходятся на советский период. Подобные дома возводились в период с 1960 по 1990 год. Отличительной особенностью является увеличение этажности построек. На лестничной площадке располагалось не более 4 квартир.
Кухни стали просторнее, а совмещенный санузел встречается лишь в однокомнатных вариантах. Видов стандартных планировок достаточно много. Но типовые размеры следующие:
- Однушка – до 34 кв. м;
- Двухкомнатная – до 47 кв. м;
- Трехкомнатная – до 65 кв. м;
- Четырехкомнатная – максимальная площадь около 76 кв. м.
Брежневка и хрущевка отличия
Дом брежневка стал следующим поколением застройки после хрущевок. Отличий между типовыми постройками есть как во внешнем виде, так и во внутренней планировке. Брежневка имела большую площадь, минимум которой составлял 33 кв. м. Это касается и габаритов лестничных площадок. Они также стали просторнее.
Высота потолка в брежневке составляла 2,5 – 2,6 м, в отличие от хрущевок. Они также не зря назывались домами улучшенной планировки. Исчезли проходные комнаты. Все помещения были изолированными с отдельными входами. Габариты кухни увеличились до 10 кв. м. в среднем. Раздельный санузел также стал плюсов построек времен Брежнева.
Есть лифты и мусоропроводы
Именно в брежневских домах появились лифты и специальные мусоропроводы. Это необходимая мера, с учетом того, что постройки возводились многоэтажные, от 9 до 16 этажей. Подниматься пешком было бы достаточно сложно. Удобство повышает и мусоропровод, находящийся в отдельном отсеке на лестничной площадке.
Способ постройки
Некоторые задумываются: брежневки – это какие дома, из чего построены?
В их основе железобетонные плиты. Они позволяли ускорить постройку и возводить сооружение быстрее. Квартиры брежневки стали более звукоизолированными, но менее теплыми. Альтернативной стал кирпич. Этот материал более теплый. Поэтому в некоторых случаях возводился кирпичный тип дома брежневки. Чаще всего это 16-ти этажные строения. У них было максимум 2 подъезда.
Отличительной особенностью домов являются плоские крыши. Их поверхность покрыта битумом, есть водостоки.
Этажность
Отмечалось, что отличительной особенностью строений времен Брежнева, была их высота.
В 60-х годах преобладали 9-ти этажные здания. Спустя 10 лет, с наступлением 70-х в брежневках увеличилась высота. Стали распространяться сооружения 16-ти этажные. Это позволяло разместить больше квартир, заняв меньше территории. Ведь 16-ти этажные дома имели не более 2-х подъездов и росли в высоту, а не вширь.
Обзор стоимости 21 год
На стоимость жилья влияют многие факторы. Среди них регион, район расположения, инфраструктура, площадь и прочее. Но можно выделить усредненную стоимость брежневок в 2021 году в крупных городах России.
| Количество комнат | Регион | ||||||
| Москва | МО | Санкт-Петербург | ЛО | Сочи | Екатеринбург | Казань | |
| 1-комнатная | 9,5 млн руб. | 5,7 млн. руб. | 6 млн. руб. | 3,8 млн. руб. | 7,8 млн. руб. | 3,5 млн. руб. | 4,5 млн. руб. |
| 2-комнатная | 12 млн. руб. | 7,5 млн. руб. | 9 млн. руб. | 5,2 млн. руб. | 10 млн. руб. | 4,5 млн. руб. | 5,8 млн. руб. |
| 3-комнатная | 18,5 млн. руб. | 9,5 млн. руб. | 12,8 млн. руб. | 6,5 млн. руб. | 14,5 млн. руб. | 5,8 млн. руб. | 7,9 млн. руб. |
Варианты
Одним из вариантов при выборе новой трехкомнатной квартиры является планировка для комфорта размещения больших семей. Оптимальным вариантом в таком случае будет приобретение студии со свободной планировкой.
В современных улучшенных сериях трехкомнатных квартир в настоящее время стараются проектировать изолированные комнаты, балконы или лоджии в каждом помещении и совмещенные санузлы.
Одним из вариантов для жилья старого типа является полная перепланировка со сносом стен, не являющихся несущими. В этом случае вы можете поменять функциональное назначение комнат и расширять пространство помещений.
При этом зачастую используется несколько вариантов. Один из них – это превращение помещения в студию, другой – это частичное объединение двух смежных помещений, например, жилой комнаты и балкона. Также при кардинальной перепланировке стараются сделать все комнаты изолированными друг от друга.
Если один из членов семьи работает в домашних условиях, то в этом случае в таком жилье не обойтись без рабочего кабинета. Размеры трехкомнатных жилых помещений могут варьироваться от 56 до 80 и более квадратных метров. Небольшая по размерам квартира занимает 60-63 м2.
Расположение комнат в «новостройках»
В настоящее время санузел принято располагать рядом с кухонной комнатой. Также в современных планировках может использоваться открытый тип жилья, когда нет изолированных друг от друга комнат, что может быть не совсем удобно.
Трехкомнатное жилье также может иметь и угловое расположение. В этом случае одна из комнат становится проходной и ее обычно превращают в гостиную. В этом случае часто совершают перепланировку такой квартиры.
Нельзя не упомянуть про чешскую типовую планировку трехкомнатной квартиры. Она является весьма продуманной, но лишенной оригинальности. Хотя в этом случае вы всегда можете совершить перепланировку, так как далеко не все стены в ней являются несущими.
В настоящее время в современных многоквартирных домах может применяться самое разнообразное расположение комнат. Постоянно появляются новые виды планировок трехкомнатных квартир, что позволяет удовлетворить самые различные вкусы будущих владельцев квартир.
В панельных домах
Также старые типовые планировки в панельных домах при помощи опытных дизайнеров всегда можно превратить в нечто новое и современное, кардинально поменяв облик квартиры.
Что касательно квартир в пятиэтажных «хрущевках», то для них сейчас стараются выбрать более комфортную перепланировку. Например, кладовку в такой квартире превращают в гардеробную для хозяйки.
Также применяют частичное объединение помещений, например, балкон со спальной или кухню с гостиной. Пол в такой квартире меняют, используя плитку и убирая старое деревянное покрытие и стяжки.
Один из интересных вариантов – перепланировка стандартной типовой трехкомнатной «распашонки» в девятиэтажках в квартиру с объединенной кухней-гостиной и двумя изолированными комнатами.
Необходимо отметить, что трехкомнатные квартиры в пятиэтажках проектировались не совсем удачными. Смежные комнаты и небольшие площади помещений были не очень удобны. Поэтому в настоящее время для улучшения условий проживания применяют кардинальную перепланировку квартиры.
Стиль и цвет должны быть едины
Выбор цвета
Квартира может быть оформлена любыми красками, но стоит учитывать размер каждой комнаты в отдельности, то, как расположены окна и какое естественное освещение.
Если ориентация северная, то выбираются теплые тона, если же южная, то стоит отдать предпочтение использованию холодной палитры.
Пространство может быть зонировано сочетанием разных цветовых схем.
- Для чего нужны видеоинструкции
- АРЕНДА АВТО
- Электрический кабель авббшв
Яркие цвета возбуждают нервную систему, и потому должны быть использованы в активных зонах, например, в гостиной, детской или на кухне.
Холодные цвета весьма успокаивающе действуют на нервную систему, и посему используется в оформлении санузла, спальной.
Цвета используют для создания иллюзии, и потому ними выполняется коррекция геометрии пространства. Так вот, холодная палитра увеличивает пространство, теплая привносит в помещение уют.
Роль освещения в интерьере
Дизайн-проект модной четырёхкомнатной квартиры, чаще всего, предполагает наличие сложной системы освещения, которая, кроме основного предназначения, отлично декорирует пространство. Подбирая осветительные предметы (люстра, бра, светильник), необходимо соблюдать определённые правила соотношения формы, оттенка и материала изготовления.
- Гостиная и столовая включают точечные светильники с рассеянным светом.
- Зона отдыха открывает большие матовые люстры.
- Барная стойка столовой оснащена светильниками современной формы и дизайнерского решения.
- На кухне галогенные лампочки, отлично освещающие рабочее пространство.

Функциональные назначения комнат в 3 комнатной квартире
Приступим к рассмотрению функционального назначения комнат при условии, что здесь будет проживать семья из 4х человек: двое взрослых и двое детей.
Это самый оптимальный вариант, который предполагает создание индивидуальных зон для каждого члена семьи. Бывают случаи нестандартные, когда, к примеру, один из родителей работает дома
Тогда важно одну комнату выделить под кабинет взрослого
Это не самый лучший вариант — лишать семью гостиной, но если другой возможности нет, приходится идти на эти жертвы. Хотя кабинет можно разместить и на утепленной лоджии, к примеру, если таковая имеется.
Планировка 4 комнатной квартиры
|
Настало время просмотреть планировки 4-комнатных квартир и первой становится серия 143 многоквартирного жилого дома. В ней 4 жилых помещения, 2 из которых площадью в 18м² и два по 12 м². Меньшие жилые помещения можно приспособить под спальню и детскую, большие помещения могут стать гостиной, столовой или, к примеру, рабочим кабинетом. Большая планировка четырехкомнатной квартиры имеет большую кухню в 9м² и три больших балкона. Примечательно, что кухня имеет варочную и обеденную зоны. На площади в 5м² можно поставить столы для приема пищи, а кухню в 9м² оборудовать только для приготовления. Площадь всего: 69 м² Жилплощадь: 40 м² Кухонное помещение: 8 м² |
|
|
Эта бельцкая планировка во всем повторяет размещение помещений в 3-х комнатном варианте. Планировка 4-х комнатной квартиры имеет два больших балкона, три спальные по 10м² и большую спальную почти в 20м².
|
|
|
Справа планировка 4-х комнатной квартиры кагульской серии. Все спальные комнаты по 11м², за исключением одной, которая имеет квадратную форму и целых 18м² полезной площади. Кухня средних размеров выходит на лоджию достаточных размеров для размещения на ней части кухонных принадлежностей.
|
|
|
Еще больше места в жилом доме серии МС. 4-е жилых помещения общей площадью 45 м²! В доме два балкона, один является смежным с кухней. Кухня расположена справа от главного входа. Санузел раздельный, туалет и ванная не размещены в одном блоке.
Следует отметить, что эта 4-х комнатная планировка довольна удобна. Как и во многих решениях, описанных выше, в этом кухня выходит на балкон. |
|
|
Рассмотрим последний план четырехкомнатной квартиры. По площади они немного меньше приведенных выше вариантов. В квартире две небольших спальни в 9 и 12 м², а также два помещения, имеющих большие размеры. Недостатком становится большой коридор, кухня и которая не имеет выхода на балкон. Вообще, следует отметить, что в этой планировке 4-х комнатной квартиры 3 балкона стандартных размеров, на которые выходят 3-и спальные комнаты.
|
Особенности перепланировки 4-комнатной квартиры-хрущевки
Переделка хрущевки в современных реалиях может стать просто необходимой, ведь бывшей при строительстве надобности поместить в квартиру как можно больше человек уже нет. Да и данные дома больше не позиционируются как временные. Зато появились новые стандарты жилья, и теперь 60 кв м – это размер хорошей двухкомнатной квартиры, а не четырехкомнатной хрущевки с неудачной планировкой.
В большинстве хрущёвок внутренние межкомнатные перегородки не являются несущими, но в четырёхкомнатных квартирах конца 60-х годов такое возможно из-за особенностей планировок.
Дело, конечно, не в количестве квадратных метров, а в правильном их использовании. И в данном случае перепланировка – первый шаг на пути к изменениям.
Особенности квартир старой планировки
Изначально для хрущевок планировка 4х-комнатных квартир не отличалась системностью и особой продуманностью, а потому имеет ряд недостатков:
- узкие подсобные помещения (санузлы, кухни, прихожие, кладовые);
- тесные жилые комнаты с недостаточным освещением из-за узких окон;
- плохая шумо- и теплоизоляция;
- тусклые коридоры;
- мало удобные балконы и кладовые;
- маленькие совмещенные санузлы, в которых недостаточно места для стиральных машинок и иной техники;
- очень маленькие кухни;
- низкие антресоли и потолки;
- узкие проходы;
- непродуманное расположение жилых комнат и находящихся по соседству уборных.
При должном оформлении и продуманном зонировании сделать уютным получится любое жилье.
Планировка 4-х комнатной квартиры в 5 этажном панельном доме. Хрущевки: описание, типовые планировки с фото

Введение
Сегодня существует множество многоярусных домов различной планировки, годов постройки и размера жилой площади. В данной статей Мы более подробно рассмотрим основные планировки популярных многоэтажных «Хрущовок», которые можно встретить в каждой стране бывшего СССР. Как правило, это 4-х или 5-ти этажные многоквартирные дома, которые возводились во времена руководства Хрущева Никиты Сергеевича.
«Хрущевки» возводились в период с 1958 до 1985 года, при этом стройка была современного на то время типа, и тысячи семей смогли получить комфортабельные квартиры с проходными комнатами. С 1958 года действует собственный СНиП.
Общие сведенья о хрущевках
Первое поколение 4-х или 5-ти этажных «хрущевок» отличалось небольшой жилой площадью, проходными комнатами. В таких апартаментах высота потолков достигала всего 2,48 метра, в домах блочного типа высота потолка могла достигать 2,7 метра. В «хрущевках» была достаточно слабая звукоизоляция помещений, совмещенный санузел и отсутствовали лифты.
Стоит отметить, что некоторые «хрущевки» относились к временному жилью, которые рассчитывали на эксплуатацию до 25 лет. Однако большая часть, все еще используется гражданами бывших стран СССР. К «хрущевкам» не сносимой серии применялись другие эксплуатационные нормы до 50 лет. В последствие эксперты заявили, что эксплуатационный период можно продлить до 150 лет (в случае капитальных ремонтов согласно нормам). На сегодняшний день «хрущевки» в Москве и Питере подлежат сносу. Однако в Минске, «хрущевкам» выполнили кап. ремонт и утеплили наружные стены.
Основные характеристики «хрущевок»:
- 3-комнатные с общей площадью 55-58 м²;
- 2-комнатные с общей площадью 30-46 м²;
- 1-комнатные с общей площадью 31-33 м².
Жилая площадь комнат:
- Гостиные комнаты – от 14 м²;
- Спальные комнаты – от 8 м²;
- Детские комнаты – от 6 м²;
- Кухни – от 4,5 м².
СЕРИЯ 1-464 – (год постройки 1960-1967)
Пяти ярусные дома панельного типа с четырьмя квартирами на одной площадке.
Особенности:
Высота помещений – 2,5 м;
Санузел совмещенный;
Кухня – 5,8 м²;
Особенности: кладовка, шкафы встроенного типа, балкон.
Площадь гостиной в 1-но комнатных «хрущевках» этого типа составляет 19 м², в 2-х и 3-х комнатных 17,3 м²; 19 м² и 20,4 м² в зависимости от планировки. Кладовая размещается в конце спальни или между 1 и 2 спальней. Выход на балкон из гостиной. Санузел совмещенный рядом с кухней.
СЕРИЯ 1-335 – (год постройки 1963-1967)
Панельные пяти ярусные дома с четырьмя квартирами на одной площадке.
Особенности:
Высота помещений – 2,5 м;
Санузел совмещенный;
Кухня – 6,2 м²;
Особенности: кладовка, шкафы встроенного типа, балкон.
Площадь гостиной в 1-но комнатных «хрущевках» этого типа составляет 18 м², в 2-х и 3-х комнатных 17,1 м²; 18,2 м² и 19,1 м² в зависимости от планировки. Кладовая размещается в конце гостиной или между 1 и 2 спальней. Выход на балкон из гостиной. Санузел совмещенный рядом с кухней.
СЕРИЯ 1-434 – (год постройки 1958-1964)
Панельные пяти ярусные дома с четырьмя квартирами на одной площадке.
Особенности:
Высота помещений – 2,5 м;
Санузел совмещенный;
Кухня – 5,8 м²;
Особенности: кладовка, шкафы встроенного типа, балкон.
Площадь гостиной в 1-но комнатных «хрущевках» этого типа составляет 16,7 м², 17,7 м², 18,2 м², в 2-х и 3-х комнатных 16,7 м²; 17,0 м²; 18,6 м²; 19,3 м² и 20,4 м², в зависимости от планировки. Кладовая размещается в конце гостиной в 1-комнатных апартаментах, в конце спальни 2-х комнатных или между 1 и 2 спальней в 3-х комнатной квартире. Выход на балкон из гостиной. Санузел совмещенный рядом с кухней.
СЕРИЯ 1-434С – (год постройки 1958-1964)
Панельные пяти и четырех ярусные дома с четырьмя квартирами на одной площадке.
Особенности:
Высота помещений – 2,5 м;
Санузел совмещенный;
Кухня – 5,9 м²;
Что учитывать при планировке?
Намереваясь изменить уже сформированную строителями планировку 4-комнатной квартиры в «брежневке» или «хрущёвке», имейте в виду следующее:
- Не все перегородки можно сносить. Все они выполнены из тонкого железобетона (или из простых бетонных перекрытий) – даже толщина перегородки в 7-10 см (по сравнению с 40-50-сантиметровыми снаружи) даёт существенное подпирание межэтажных перекрытий. Дело в том, что общая площадь 4-комнатной квартиры иногда достигает 72 кв. м, что по сравнению с 31 «квадратами» у «однушки» – разница более чем в пару раз.
- Законы физики никто не отменял: межэтажные перекрытия – одни и те же по характеристикам. Большие пролёты между несущими (наружными, межквартирными) стенами, лишённые дополнительной подпорки, увеличивают шансы на прогиб горизонтальных плит.
- А те, в свою очередь, являются полом и потолком одновременно на всех этажах, кроме первого и последнего. Поэтому любой снос перегородок (перестенков) нельзя проводить без разрешений со стороны жилконторы и других коммунальных служб. Переделка «втихую» приведёт не только к штрафу при попытке продать перепланированную квартиру, но и увеличит шансы на обрушения вышележащих этажей в подъезде на вас и ваших соседей.
Изменять площадь санузла нельзя. Этим вы можете серьёзно нарушить гидроизоляцию. Если у вас прорвёт водопровод, протечёт канализация, выйдет из строя стиральная машина – возможно, пол будет затоплен. Расширенный санузел приведёт к протечке воды вниз к живущим этажом ниже соседям, со всеми вытекающими отсюда последствиями.
Как создать комфортное пространство в трехкомнатной квартире
Обустройство квартирного пространства зависит от того, сколько людей будет в нем проживать, их пола, возраста. Для детей обычно делается несколько маленьких комнат, для взрослых пространство часто зонируют мебелью. Главное для любой квартиры – создать хотя бы небольшое личное пространство для каждого члена семьи, вне зависимости от его возраста.

Выбирая дизайн для трехкомнатного пространства, для начала руководствуются количеством проживающих человек.
Перепланировка современной 3-х комнатной квартиры начинается с составления проекта. Готовый план необходимо утвердить в соответствующей организации. Дизайн жилища выбирается самостоятельно. Если в семье не более двух человек, имеет смысл перестроить квартиру в «студию» – тогда подбирают планировку с минимальным количеством внутренних капитальных стен.

По выбору стилевого решения для трешки не существует определенных требований.
Стандартный план
Планировка 4-комнатной хрущёвки предусматривает следующие помещения:
- две спальни, расположенные в самой дальней зоне;
- третья комната – гостиная, являющаяся проходной для этих спален;
- четвёртая комната – ещё одна спальня, расположенная по соседству от кухни;
- кухня, ванная и туалет располагаются по соседству с прихожей, близко от входа;
- в конце прихожей по соседству с гостиной имеется гардеробный отсек.
Следующая исторически более поздняя разновидность многоэтажного дома – панельный 9-этажный дом, «брежневка» – обладает некоторыми отличиями от «хрущёвки». Спальни и гостиные, кухня и санузел расположены примерно так же, как и в 4-комнатных «хрущёвках», но отличаются по площади.
В Санкт-Петербурге и Москве за последние несколько лет выполняется программа реновации – старые «хрущёвки», многие из которых признаны аварийными, подлежат расселению и разборке. Взамен строительные компании по указу федеральных и местных властей возведут новостройки, в которых площадь комнат немного подрастёт. Кухни, санузлы и коридоры (включая прихожие) станут заметно больше.
Кирпичные «хрущёвки» и «брежневки», вне зависимости от числа комнат в квартирах, обладают меньшей продуваемостью и улучшенной звукоизоляцией.
Серия 1-464 (1960 – 1967 гг.)
Общий чертеж:
Одной из самых популярных в СССР серий хрущевок стала 1-464 (1960 – 1967 гг.). Это панельный дом с 5 этажами, редко можно встретить 3 и 4 этажные здания. Во всех квартирах есть балконы (также дополнительные кладовки), а вот лифты не предусмотрены и жителям здания приходиться подниматься и спускаться по ступенькам, что достаточно тяжело пожилым людям, семьям с маленькими детьми. Санузлы в квартирах совмещенные, в подъезде нет общего мусоропровода, а количество квартир на площадке составляет 4. Высота потолков в квартирах – 2,5 м2, кухни менее 6 м2, если быть точнее – 5,8 м2. Квартиры 1, 2 и 3-х комнатные.
Картинка – чертеж:
1 комнатная:
2 комнатная:
3 комнатная:
Лоджия и балкон
Практически всегда трехкомнатная квартира московской или другой планировки предусматривает наличие лоджии и балкона, ну или хотя бы чего-то одного.

Люди часто относятся к ним, как к техническим помещениям, которые в итоге оказываются кладовкой или складом. Однако у них может быть и другое применение, более интересное и практичное.

Мы сейчас будем рассматривать новые идеи планировки трехкомнатной квартиры, которые всегда предусматривают использование лоджий и балконов в роли жилых помещений.










Для этого практически всегда надо сделать или заменить существующее утепление. Многие люди, если мы говорим о лоджии, меняют и внешнюю стенку, которая обычно и так очень тонкая.

Вместо нее можно поставить стену из современных материалов, вроде пеноблока, или же сделать панорамное остекление.

Второй вариант идеально выглядит, если окна комнаты входят не на солнечную сторону. В этом случае комната внутри может страдать от недостатка природного света, а потому мы так решим срезу несколько проблем.







После этого балкон или лоджию надо утеплить, причем в первом случае это сделать существенно сложнее. Причиной тому конструкция – плита, которая просто выходит за пределы здания.

Если вы планируете сильно утяжелять конструкцию – добавьте опоры под плиту.

Если говорить о лоджии, то делая собственную планировку 3-х комнатной квартиры в хрущевке многие решают снести перегородку, тем самым сделать одну большую комнату.










Отказаться от всего этого можно, если у вас 3-х комнатная квартира ленинградской планировки, или просто современной постройки. В них обычно не встречаются проходные комнаты, а вместо комплекта из балкона и лоджии встречается только первый вариант.

Причем они часто открытые, если говорить о старых домах, многие из которых являются памятниками архитектуры, а потому перепланировка балкона является незаконной.

Типовые варианты планировки с размерами
Квартиры этого типа строились в кирпичных домах в 5 этажей, после модификации число этажей изменилось на 9 и 12.
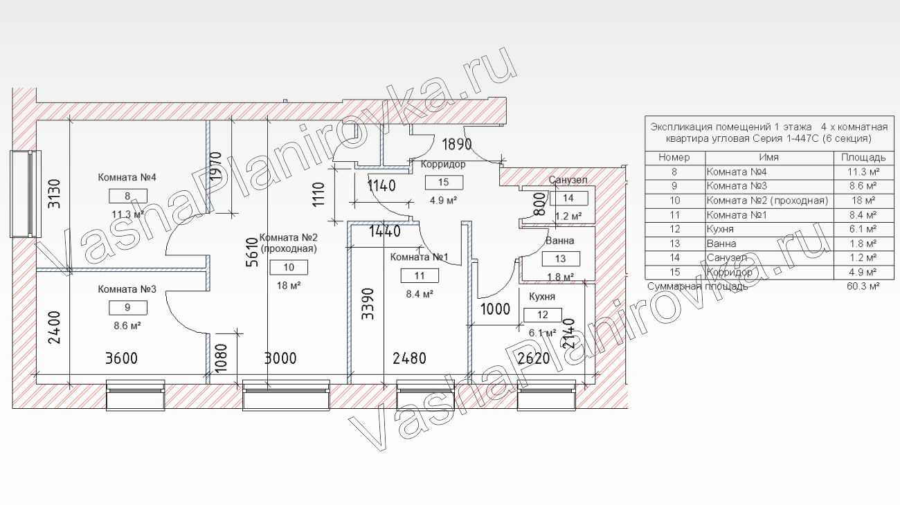
Планировка 4х комнатной квартиры в доме (серия I-447C)
Несущие стены в кирпичных хрущевках располагаются по длинной стороне здания. Комнаты выходят на одну сторону фасада дома, в гостиной выход на сдвоенный балкон длиной 3 м и шириной 1 м. На первых этажах кирпичной постройки балкон отсутствует.
Планировочное решение квартиры 4х комнатной хрущевки серия дома 1мг-300
Планировка прихожей в таких квартирах — имеет квадратную форму в которой сложно разместить какую-либо мебель. Из ее идут проходы в изолированные комнаты. В маленьких комнатах размещаются спальные и детские. Раздельный санузел не доставляет проблем для проживания большого количества людей. Если разобрать встроенные шкафы, то планировка коридора измениться и можно будет установить вместительный шкаф купе.
В коридоре застройщиком устанавливаются встроенные шкафы. Под потолком устанавливаются антресоли.
Расстановка мебели в хрущевке
«Как расставить мебель в маленькой комнате в хрущевке?»-Этот вопрос часто задают себе владельцы 4 х комнатной хрущевки. Им приходится становиться экспертом в этом деле для грамотного и удобного обустройства своего жилья.

Обстановка мебелью 4х комнатной квартиры (хрущевки) для многодетной семьи в доме серии I-447C
В жилище, не обладающем большими размерами, необходима рациональная расстановка мебели. Модели должны быть компактны и вместительны. Шкафы, диваны и кресла лучше приобретать светлых тонов и небольших габаритов.

План расстановки мебели в хрущевке четырехкомнатной серии дома 1Мг-300
Перед покупкой нужно распланировать каждый предмет интерьера — создать планировку. С помощью замеров легче определить ширину и длину дивана и других атрибутов.
Правила обстановки мебелью
- В длинный коридор при планировке устанавливается узкий шкаф-купе шириной 40 см с зеркальными дверцами. Это обеспечит семью нужными полками, вешалками и не займет свободное пространство в прихожей.
- В кладовке, которая присутствует в квартирах этого типа, организовывается гардеробная со штангами для вещей и полками для обуви и бытовой техники.
- Рекомендуется занимать угловые площади в жилище. Угловые конструкции компактны и практичны.
- При расстановке мебели лучше соблюдать симметрию. Если это гостиная, то надо приобрести 2 легких дивана в зону отдыха и отказаться от угловых массивных моделей.
- Хорошо будет смотреться в малогабаритной квартире мебель-трансформер. Эргономичность таких моделей позволяет оставить свободной центральную часть комнаты, а при необходимости она легко раздвигается, создавая спальное место.
Если придерживаться минимализма в обстановке, останется достаточно свободной площади для игр детей и комфорта взрослым. Предметы интерьера должны соответствовать основной цветовой гамме отделки стен.
Дизайн-проекты детских комнат для детей разного возраста
Мальчики и девочки предпочитают разный стиль оформления личного пространства. Различия становятся особенно заметными с ростом ребенка.
Детская для двоих детей в четырехкомнатной квартире

На рисунке: Детская для двоих детей в четырехкомнатной квартире
Этот проект выполнен в красочных тонах и подходит как для мальчиков, так и для девочек. Он может быть рекомендован семьям с двумя детьми возрастом от 5 до 10 лет. Основной особенностью проекта можно считать компактное расположение двухъярусной кровати в выемке стены.
Детская для девочки-школьницы

На рисунке: Интерьер детской для девочки в четырехкомнатной квартире
В этом дизайне интерьера с пользой задействован каждый сантиметр пространства. Тут вы увидите встроенный стеллаж, адаптированный под стол подоконник и яркую витражную перегородку, отделяющую область для сна.
Спальня для девочки-подростка

На фото: Дизайн спальни с лиловыми оттенками в четырехкомнатной квартире В данном варианте проекта наблюдается классическая изысканность мебели и нежные сочетания бело-лиловых цветов. Комната напоминает покои принцессы, поэтому понравится любой романтически настроенной девушке.
Виды планировок квартир
Может иметь самое разное расположение помещений 3-комнатная квартира. Планировка здесь бывает нескольких видов:
- «Сталинка». Такие дома возводились в самом начале 50-х годов. Это было лучшее советское жилье. Высота потолков достигает трех метров. Стены массивные и выложены из красного кирпича. Комнаты изолированы и удобно расположены. Санузел раздельный. Делятся на номенклатурные и рядовые. Первые дома предназначались для элиты и имели помещения для слуг, арки и просторный холл.
- «Хрущевка». Строились в период с 1957 по 1962 год. Дома такого типа имеют неудачное расположение комнат, тонкие панельные стены, совмещенный санузел и низкие потолки. Кухня малых размеров — 3-4 кв. м.
- «Брежневка». Квартира средних размеров, имеет раздельный санузел. Улучшенный вариант «хрущевки». Есть встроенные шкафы, антресоли. Шкаф для хранения продуктов расположен под окном на кухне. Размеры кухни — 7-9 кв. м.
- Современное жилье. Квартиры с увеличенной площадью, имеют удобную планировку. Один или два санузла. Комнаты могут быть расположены «вагончиком» или выходить на обе стороны здания. Кухня в современных квартирах большая — от 7 кв. м.
- Элитное жилье. Здесь количество санузлов соответствует числу спальных комнат в доме. Комнаты расположены с учетом пожелания заказчика. Есть гардеробные и кухни-студии. Такая квартира спроектирована с учетом всех потребностей человека и является самой комфортной.





























