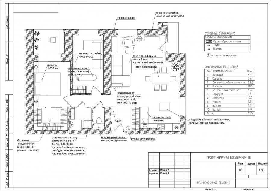
Разнообразие советских планировок 3-х комнатных квартир
В соответствии с видом домов и их территориальным расположением выделяют несколько типов п-3м планировок. Возможность расположить комнаты отдельно зависит от года постройки здания и его материала.
Отрицательно на популярности такого размещения сказываются тонкие стены и совмещенный санузел. Но некоторые старые постройки могут похвастаться довольно просторными залами, длинными коридорами и высокими потолками.
В сталинке
Начало строительства таких домов припадает на 50-е годы. Кирпичные пятиэтажные здания с улучшенной планировкой в то время считались статусным жильем. Они возводились по всему Союзу. Их можно было увидеть в Минске, Гомеле, Орле, Харькове, Бобруйске и прочих городах. Основные характеристики 3-комнатной сталинки – высокий потолок (3-4 метра), раздельный санузел, изолированные комнаты.
В основном они имеют три этажа. К особенностям относятся широкие подоконники, наличие кладовых. Перекрытия могут быть бетонными, деревянными или смешанными. К преимуществам можно отнести удобное расположение, в основном в центре крупных городов, хорошую звукоизоляцию.
В хрущевке
Такие дома возводились с конца 50-х и до 1980 года. На протяжении этого времени они дорабатывались, модифицировались. Планировка 3-комнатного жилья ранних версий не отличалась комфортом. Потолки были низкими, комнаты очень маленькими.
В конце 70-х развернулось активное строительство 9-этажных хрущевок по специальной программе в 53 кв.м. Здания из кирпича и панелей стали улучшать, потолки достигали 2,64 м. Из-за снятия нагрузки с внутренних перегородок появилась возможность перепланировки прямоугольных комнат.
В брежневке
Средние по площади 3-комнатные квартиры считались улучшенными проектами хрущевок. Их отличали большие окна, наличие ниш и антресолей в коридоре или над межкомнатной дверью. Площадь всех помещений от 48 м2 до 56.2 м2.
Некоторые брежневки имеют улучшенную планировку, прошли реновацию. В домах «башнях» кухни очень большие. Их метраж до 10 м2. Узкую прихожую можно сделать функциональной и визуально увеличить за счет встроенного шкафа. Если жилищные условия можно увеличить только за счет перепланировки, все действия необходимо согласовывать.
Планируя снос стен в ванной комнате, необходимо понимать, что все сантехнические предметы должны оставаться на местах, определенных архитектором на этапе составления чертежей. В противном случае высока вероятность затопления.
Интерьер 3-х комнатной квартиры: от комнат к зонированию
В отличие от однокомнатной квартиры, в просторном жилье требования стилистического единства не так строги. Однако для создания гармоничной атмосферы всё же лучше придерживаться одного стиля во всех комнатах.
Основными зонами, наличие которых обязательно в трехкомнатной квартире, являются: — спальня — кухня — зона отдыха — ванная/санузел — детская/игровая комната
Набор необходимых зон в квартире зависит от количества жильцов, их возраста, рода занятий и увлечений. Кухня имеет небольшие размеры и вы хотите выделить для приема гостей отдельную комнату? Тогда перенесите дружеские посиделки в гостиную, а кухню создайте в утилитарном и минималистичном стиле, не перегружая интерьер многофункциональностью.
Если вы пока не планируете расширение семейства и появление детей в ближайшее время не ожидается, то детскую комнату можно заменить гостевой или оборудовать в ней рабочий кабинет.
Дизайн трехкомнатной квартиры
Спальня в скандинавском стиле
Преимущества современной планировки квартир
К стандартной планировке квартир ХХ века с двумя комнатами можно отнести проходной вид. Большая комната располагалась рядом с вместительной кладовкой, в которой был выход в спальную комнату.
Смежная планировка двух комнат
В то время многим домашним умельцам приходилось увеличивать жилое пространство, за счет «сноса» кладовки и сооружения новой стены. Таким способом отгораживалась часть зала, и получались две разные комнаты. Однако такой приём способствовал появлению длинного тёмного коридора, но всё-таки иметь раздельные комнаты было приоритетнее эстетики.
Изменение планировки
Отличие современной планировки трёхкомнатной квартиры от квартир, построенных в середине прошлого века, заключается в том, что ванные комнаты с туалетами стали теперь раздельными, как и сами жилые комнаты. Увеличились по площади кухни, ванные. В трёхкомнатных квартирах, почти во всех, появились балконы или вместительные лоджии.
Современная планировка трёхкомнатной квартиры
Готовая квартира сегодня – это ещё не конечный результат. Время вносит свои коррективы. Появилось много опытных дизайнеров предлагающих свои услуги в планировке, дизайне интерьера, которые могут при своеобразных, несложных приёмах увеличить или уменьшить площадь жилья, разделить по зонам комнаты с целью их функциональности.
На сегодняшний день планировки квартир в новостройках весьма рациональны и удобны. Четырёх- и пятикомнатные квартиры стали строиться с большей площадью. Потолки тоже заметно «выросли» — от традиционных 2,5 м они увеличились до 3-х м. Появились квартиры с проектами по индивидуальным планировкам и квартиры-студии.
Двухуровневые трёхкомнатные квартиры
Квартиры-студии вошли в моду и очень востребованы в современном строительстве. В них почти отсутствуют внутренние стены, а кухня совмещена с большой комнатой. Есть и такие студии, которые состоят только из одного большого помещения с перегородкой для санузла и ванной.
Если вам не удалось найти квартиру с понравившейся планировкой, не стоит расстраиваться. Можно самим попытаться всё это сделать. Есть универсальные правила по планированию, в том числе и спальни. Для начала нужно выбрать помещение и определить его функцию: будет ли это только спальня, гостиная-спальня или же спальня и рабочий кабинет. Затем поделить пространство по основным зонам и как-то их обозначить.
Малогабаритные квартиры зонируются исключительно по цвету и материалам. Квартиры нового типа органично смотрятся, когда в работе применяются такие материалы как гипсокартон, стекло, пластик, текстиль. Также к зонирующему варианту относятся «японские» шторы.
На этом видео можете посмотреть на пример дизайна интерьера трёхкомнатной квартиры.
Особенности
Одной из особенностей трехкомнатной квартиры является наличие проходного пространства. В современных домах планировка 3-х комнатного жилья стала весьма удобной благодаря высоким потолкам.
Такое жилье в хрущевских пятиэтажках часто подвергаются самостоятельной перепланировке. Причиной тому служат небольшие площади отдельных жилых и нежилых зон, проходные комнаты и т. д.

Следует сказать, что при наличии определенной фантазии в проектировании и желании как-то преобразовать свой дом вы всегда можете создать уникальный и неповторимый дизайн и планировку из, казалось бы, привычных и типовых квартир.
Нельзя не отметить, что при выборе трехкомнатного жилья наибольшим спросом пользуются помещения с раздельными и изолированными друг от друга комнатами. Вообще, среди типовых планировок таких квартир можно отметить самые разнообразные варианты, смежные, смешанные, изолированные, открытые (студии).

Современные типовые планировки трехкомнатного жилья нередко подвергаются индивидуальным изменениям. Для этого зачастую объединяют несколько комнат, комнату с балконом или комнату с коридором.

Стандартная планировка «трешки»
Имеет несколько вариантов размещения жилых помещений типичная 3-комнатная квартира. Планировка здесь может быть удобной или доставлять определенный дискомфорт своим жильцам. Так, например, две комнаты маленькие, а одна большая. В некоторых жилищах наблюдаются два смежных помещения и одно изолированное, но маленьких размеров. Иногда комнаты располагаются по обеим сторонам здания. Такая схема расположения называется «самолетом» и часто встречается в московских домах. Лучшими считают 3-комнатные квартиры (серии планировки характеризуют положение комнат, высотность здания, размеры помещений и многое другое), в которых все помещения изолированные.
Обычно в стандартной трехкомнатной квартире имеется хотя бы одна кладовка. Большинство дизайнеров рекомендуют и из неё сделать гардеробную. В небольших помещениях за счет кладовки можно решить проблему недостающего пространства.
Обычно в квартире из трех комнат одну определяют для гостиной, вторую — для спальни, а третью отводят под детскую, если в семье есть дети.
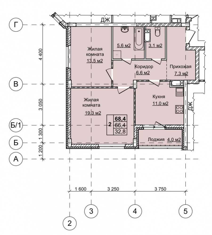
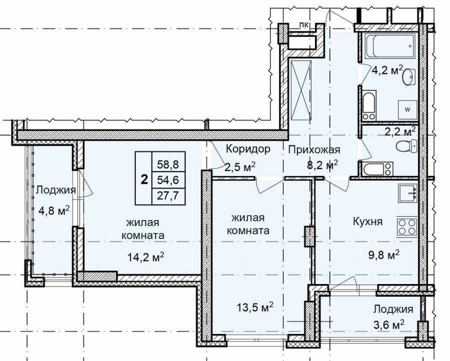
Почти все «трешки» имеют раздельный санузел, а многие из них — угловое расположение. Находятся на максимальном удалении от лестницы и лифта. Стандартные размеры такой квартиры колеблются от 56 до 80 кв. м. Самая большая комната — от 15 кв. м, обычно это зал или гостиная; спальня — от 12 кв. м, а на детскую комнату приходится от 10 кв. м. Размеры кухни — около 7-9 кв. м.
Трехкомнатная квартира дает определенную свободу в использовании жилого пространства. Места здесь хватит всем — и взрослым, и детям.
Типовые серии хрущевок: основные плюсы и минусы домов
Давайте рассмотрим основные характеристики квартир и определим особенности каждой серии хрущевок, которые возводились на протяжении 27 лет. Стоит заметить, что изначально хрущевки предполагалось использовать, как временное жилье и эксплуатационный срок здания составлял от 25 до 50 лет. Но, как известно, в таких домах проживают люди и в наше время. К минусам хрущевок можно отнести плохую шумоизоляцию и теплоизоляцию (зимой прохладно, а летом слишком жарко в квартире), не всегда удачную планировку квартиры и подъезда: узкие коридоры, маленькую кухню, отсутствие мусоропровода и очень часто лифта. К основным плюсам таких домов можно отнести невысокую стоимость.
К основным плюсам таких домов можно отнести невысокую стоимость жилья и развитую инфраструктуру вокруг здания. Как правило, недалеко от хрущевок есть садики, школы, магазины и отличная транспортная развязка. Если денежных средств на покупку квартиры мало, то хрущевка – не самый плохой вариант. Тем более, такие здания в Москве и других городах России, подлежат сносу, в этом случае владельцы получают новенькое жилье, или реконструкции и перепланировке.
15 вариантов планировки трёхкомнатной квартиры
Для большой семьи каждый сантиметр площади и его грамотное использование уже будет играть важную роль в сохранении мира и душевной гармонии.
Планируя квартиру с двумя отдельными спальнями и общей комнатой, предусмотрите место для всей семьи и личные уголки для каждого. Вам может помочь объединить пространство открытая планировка и совмещение, например гостиной с кухней, но оставьте себе и возможность для уединения.
Вариант №1
Устройте на лоджии уютный уголок для чаепития или работы. А в детской спальне множество проблем решит двухэтажная кровать вместо двух отдельных. Больше места для игр, при этом у каждого ребёнка — своя территория для отдыха.

Вариант №2
Удачная планировка этой квартиры обеспечила окном каждую комнату. Обязательно используйте все возможности естественного освещения — полезного для самочувствия и настроения. Без света можно оставить разве что технические помещения, вроде кладовой или прихожей, но не спальню или гостиную.

Вариант №3
Даже в комнатах с открытой планировкой не избежать правильного зонирования, помогающего выжать максимум пользы из пространства. Для отделения зоны отдыха от обеденного уголка в гостиной используйте ковры и освещение. Для выделения рабочего места в спальне подойдут ширмы и стеллажи.

Вариант №4
Если детская пока не нужна, а место для гардеробной нашлось где-то ещё, используйте вторую комнату как кабинет. Устройте идеальный домашний офис для бизнеса или уголок творчества. Но и диван поставьте на всякий случай, чтобы было где оставить на ночь неожиданных гостей.

Вариант №5
Примыкающий к гостиной дворик или лоджия — фактически дополнительная комната в тёплое время года. Отнеситесь к ней соответственно — предусмотрите освещение, устройте место для отдыха. Но если осень и зима холодные и дождливые, убедитесь, что вам есть куда убрать летнюю мебель.

Вариант №6
Если вы живёте с друзьями, общая гостиная и две изолированные спальни — очень хороший вариант, чтобы иметь и возможность уединиться, и устроить совместную вечеринку. Если санузел примыкает только к одной из комнат, очередей по утрам не избежать.

Вариант №7
Маленькая комната, примыкающая к просторной спальне, — отличный вариант для семьи с подрастающим ребёнком. Так у него будет собственное место для игр, отдыха и учёбы. Но родители совсем рядом, если ночью что-то напугает.

Вариант №8
Если в квартире два уровня, то на первом этаже оставьте кухню и гостиную. На втором логично разместить главную спальню, для максимального уединения. В идеале ванная должна быть и на первом, и на втором этаже — хозяйская и гостевой санузел.

Вариант №9
У этой квартиры интересная планировка. Фактически здесь два крыла, и в каждом — свой санузел и зона гардеробной. Очень удобно для большой семьи.

Вариант №10
Большая открытая планировка совмещённой с кухней гостиной и столовой, да ещё и с внутренним двориком, создаёт в этой квартире массу вариантов для использования. Оптимально для многолюдных вечеринок с кулинарными изысками — готовить для гостей здесь очень удобно.

Вариант №11
Ванная нестандартной формы на первый взгляд может быть проблемой. Но такова цена её довольно большого размера. Разместите здесь душ или угловую ванну, и место останется и для стиральной машины, и для сушилки.

Вариант №12
Размещение гардеробной рядом со спальней — более привычный вариант. Но если устроить её в прихожей, можно найти массу плюсов. Например, так можно спокойно собираться на работу, не беспокоя тех, кому вставать позже.

Вариант №13
Спальни стоит размещать как можно дальше от источников шума. К примеру, будет лучше, если в противоположном от них конце дома будет гостиная с телевизором, кухня с работающей техникой. Для оптимальной тишины окна спален не должны выходить на улицу с активным движением.

Вариант №14
Когда семья растёт, гостевая спальня превращается в детскую. Всё равно нужно где-то размещать гостей? Поставьте в гостиной удобный диван, раскладывающийся для сна.

Вариант №15
Иногда очень хочется отделить зону столовой от гостиной. Например, используя приёмы визуального зонирования — продуманное освещение, размещение мебели и ковров. А летом совместные обеды и ужины просто устраивайте на балконе или во внутреннем дворике.

Площадь жилая и нежилая
Не забудьте обратить внимание на нежилую площадь Кухня, холл, санузел, балкон и лоджия, значимость которых для жизненного комфорта была очень недооценена, сегодня стали играть большую роль при выборе квартиры. Просторная кухня и большой балкон с видом на лес – огромные плюсы к ликвидности квартиры
Однако имеет значение и соотношение жилой и нежилой площади, все должно быть в разумных пределах.
Отрицательно характеризуют квартиру плохо освещенные закутки и громоздкие кладовки. Они нефункциональны и вызывают у владельца трудности с их использованием.
Примером неудачного зонирования может стать размещение всех комнат вдоль общего коридора. В итоге получается длинное темное помещение с множеством дверей, которое «ворует» много полезной площади.
Негативным моментом является также неудачное размещение в квартире санузла. При опросах покупателей многие выражают желание, чтобы ванная комната и санузел примыкали к спальне. Подавляющее большинство покупателей хотело бы, чтобы в квартире было два санузла. Но на практике зачастую оказывается наоборот – из-за особенностей размещения стояка места гигиены располагаются между кухней и гостиной. Это неудобно по многим соображениям, в том числе и потому, что, если собственник захочет объединить эти два помещения, он при всем желании не сможет этого сделать. Стоит добавить, что владельцы небольших квартир не претендуют на такую роскошь, как два санузла – жилое пространство слишком дефицитно, чтобы жертвовать им в пользу второй ванны, поэтому им вполне хватает и одной.
С чего нужно начинать
Прежде всего нужно провести анализ особенностей квартиры. Для этого составляют подробную схему и выявляют нерациональное использование доступного пространства.

Затем нужно решить, какая планировка необходима. Она может включать не только выбор расположения мебели, но и перепланировку стен там, где это разрешено законодательством.

Одной из целей этой работы является обеспечение, в соответствии с имеющимися возможностями, индивидуального пространства для каждого проживающего в этой квартире.
Важно выбрать подходящий стиль будущего оформления и предпочтительный дизайн квартиры. В дальнейшем вся работа по перепланировке будет вестись в разработанных заранее рамках
Для того, чтобы провести выбор, необходимо ознакомиться с доступными фото планировки двушки.

Дизайн 3-х комнатной квартиры в хрущевке с учетом недостатков постройки
Кроме низких потолков и небольшой площади комнат к недостаткам квартир в домах советской постройки относятся проходные комнаты и размещение спален по разные стороны от коридора. Из проходной комнаты невозможно сделать полноценную спальню, поскольку вы никогда не получите там уединения, без которого личное пространство сложно представить. Но в нее отлично впишутся гостиная и общая зона отдыха, что поможет разгрузить другие комнаты.
Преимуществом таких квартир является небольшая прочность внутренних перегородок, которые редко являются несущими и поэтому могут быть изменены или демонтированы. Потолок и стены лучше снабдить дополнительной звукоизоляцией, поскольку слышимость в большинстве хрущевок превосходит все опасения.
В панельных домах
Одной из распространенных планировок для панельного дома является трехкомнатная квартира проходного типа. Также старые типовые планировки в панельных домах при помощи опытных дизайнеров всегда можно превратить в нечто новое и современное, кардинально поменяв облик квартиры.
Что касательно квартир в пятиэтажных «хрущевках», то для них сейчас стараются выбрать более комфортную перепланировку. Например, кладовку в такой квартире превращают в гардеробную для хозяйки. Другой вариант – сделать из «хрущевки» квартиру-студию.
Необходимо отметить, что трехкомнатные квартиры в пятиэтажках проектировались не совсем удачными. Смежные комнаты и небольшие площади помещений были не очень удобны. Поэтому в настоящее время для улучшения условий проживания применяют кардинальную перепланировку квартиры.
Цвет и декорирование
Дизайнерские приемы помогают относительно легко устранить визуальные недочеты планировки трехкомнатной квартиры. Исправить проблему недостаточного простора в небольших комнатах способно стилистическое решение в светлых оттенках.
Выгоднейшие позиции среди них занимают:
- Молочный белый;
- Светлый бежевый;
- Ненасыщенный коричневый.
Чтобы еще больше подчеркнуть неброский вид такого оформления, к нему присоединяют единичные яркие вкрапления; очень хорошо использовать декор с цветочными и растительными сюжетами. Кроме настенных панно, они могут вводиться в состав мебели или даже украшать источники света. На длинной стене прихожей превосходно будут смотреться семейные фотографии. Конечный итог – помещение хорошо насыщено светом и совсем не выглядит скучным.
Гостиную имеет смысл декорировать однородным светлым фоном, тогда получится в оставшейся части ее скомбинировать тона, обычно считающиеся несовместимыми. Неплохая мысль – объединять цветом кухню и гостиную (могут совпадать окраска нижних кухонных фасадов, стен гостевого помещения и полок для книг).
Часть дизайнеров намеренно делает неотличимыми по цвету затирку швов между плитками на фартуках и обивку пуфов, куда сядут гости. Общеупотребительный белый окрас за счет примешанных к нему мягких зеленых оттенков улучшает настроение и помогает эмоционально расслабляться. Среди иных сочетаний полезно использовать совпадающие узоры на занавесках в разных комнатах, при этом сами шторки могут иметь различный цвет и даже быть выполнены из разнородных материалов.
Кухню советуют окрашивать светлой краской или покрывать не слишком темными отделочными панелями. Санузлы в классических и современных квартирах практически не декорируются, это позволяет намекнуть на строго утилитарную задачу таких помещений.
Как сделать из трехкомнатной квартиры четырехкомнатную
/ / Обычно трехкомнатные квартиры приобретают семьи, которые имеют от одного до трех детей.
Приглашая к себе дизайнера для создания проекта перепланирования, они хотят обеспечить каждого члена семьи своим собственным уголком. Даже если все стены вашей квартиры являются несущими, разрешить эту проблему возможно.
Еще он может стать отличным местом для бара или размещения небольшого аквариума.К тому же все собственники квартир обязаны знать и помнить, что незаконное перепланирование квартир может грозить крупным административным штрафом и обязательством того, что вы приведете
Дизайн 3-х комнатной квартиры — 115 фото лучших идей как оформить красивый интерьер
> > В данной статье речь пойдет о современном дизайне 3 комнатной квартиры.
Все комнаты жилища должны подчиняться, одному единому стилю. Оглавление статьи: К чему же приступить в первую очередь?
Приступая к работе нужно помнить, что самое главное – это добиться красивого внешнего вида квартиры и обеспечить уют и комфорт. При ремонте надо учесть потребности проживающих людей.
Что бы удовлетворить их потребности учитывается образ жизни жильцов. Для начала жилую площадь разделяют на зоны. Это может быть комната сна, отдыха и общие комнаты.
Проще говоря — это спальня, гостиная, кухня, прихожая и туалет с ванной.
Если же в квартире будут жить дети, то им нужна игровая зона. Размеры этого помещения позволяют установить в нем шкаф – купе предназначен под одежду и обувь.
Проект однокомнатной квартиры

Вариант проекта небольшой однокомнатной квартиры-студии Перепланировка зависит от площади и первоначального расположения жилых, служебных помещений. Средняя площадь их 30 кв.–40 кв. Чтобы избавиться от эффекта ограниченного пространства часто перегородочные стены сносят. Типовые приёмы перепланировки:
- соединение гостиной с кухней, возможно с прихожей;
- снос всех перегородочных стен, кроме соединенного санузла;
- параллельно совмещают туалет и ванную комнату.
Пример планировки совмещенного туалета с ванной комнатой
В квартире небольшой площади важен каждый квадратный метр, поэтому часто задействуют лоджию, балкон, утепляют их. Интересный вариант планировки — демонтаж всех перегородок, кроме совмещенного санузла.
Применяют диагональное зонирование мебелью, гипсокартонными перегородками с подсветками. Отделяют зоны кухни, отдыха. На лоджии оборудуют небольшое рабочее место.

Зонирование студии с помощью книжного шкафа
Встроенная кухонная мебель — хороший вариант для небольшого помещения. В ней компактно размещают бытовую технику, стиральную машину (если ванная небольшая).
Барную стойку совмещают с обеденным столом. В санузле рационально использовать диагональную ванну, она более эргономична с точки зрения расположения, комфортная с точки зрения объёма.

Фотообои, фрески с изображением перспективы визуально расширят комнату.
Расширить пространство позволяют отражающие поверхности: натяжные потолки, зеркала, композитные материалы.
Освещение делают комбинированное: общее и в отдельных зонах.
Удачные примеры и лучшие варианты
В современном городе в настоящее время при строительстве новых микрорайонов с многоквартирными домами появляется большое разнообразие планировок квартир. Самыми популярными считаются трехкомнатные. Они проектируются строятся как в панельных, так и в более престижных кирпичных домах.
Самым лучшим вариантом считается студия со свободной планировкой. Такая нестандартная квартира позволяет проявить собственную дизайнерскую фантазию и смоделировать для себя наиболее удачный вариант для комфортного проживания.
Планировки трехкомнатных квартир бизнес-класса могут включать в себя высокие потолки, а также несколько санузлов. Конечно же, общая площадь такой квартиры также будет больше обычной.
Также следует отметить, что покупка трехкомнатной квартиры – это выгодное инвестирование, так как цены на такое жилье постоянно растут.
7фотографий
Рассмотрим примеры трехкомнатных квартир. Здесь представлена планировка новой трехкомнатной квартиры. Имеется большой и просторный коридор-холл, где свободно расположены шкафы для одежды, обуви и постельного белья.
Все комнаты изолированы друг от друга. В правой части находится раздельный санузел и кухня. При желании санузел можно сделать совмещенным, что позволит разместить там стиральную машину. В левой части расположены две спальни – одна больше, другая поменьше. В центре находится гостиная, которую можно совместить с кухней, позволив тем самым визуально и физически увеличить общее пространство.
В целом, довольно удачная и современная планировка для семьи из трех или четырех человек.
Еще один вариант планировки трехкомнатной квартиры. Здесь имеется коридор в виде буквы Г. А вот раздельный санузел совместить при всем желании будет довольно сложно, так как ванная и туалетная комнаты находятся в разных частях коридора.
Гостиная довольно просторная и имеет выход на балкон. Выйдя из нее через коридор, мы попадем в кухню. В конце коридора по обе стороны от ванной комнаты слева и справа расположены две спальни.
Все комнаты изолированы друг от друга. Вариант данной квартиры, в целом, довольно хорош, но при желании в нем возможна даже кардинальная перепланировка комнат со сносом стен.
Рассмотрим еще вариант планировки трехкомнатный квартиры, имеющий небольшие отличия от предыдущих вариантов.
Все комнаты изолированы друг от друга. При входе в квартиру мы попадаем сразу в длинный и прямой коридор. Слева от него расположены три спальни. Первые две имеют выход на балкон. В третьей, более просторной спальне, имеется своя гардеробная.
Туалет и ванная разделены друг от друга и, как и во втором варианте, не имеют смежных стен. Справа по коридору, напротив туалетной комнаты, расположена большая и вместительная кухня-гостиная. Она также имеет выход на весьма большой балкон, где можно уютно разместиться целой компанией. В общем планировка довольна хороша и имеет ряд своих особенностей и достоинств.
В заключение хочется сказать, что в настоящее время в приоритете не только комфорт и роскошь квартиры, но и практичность и функциональность. Поэтому упор в современных постройках делается именно на это. Если же хочется сделать более комфортной жилье старого фонда, например, «хрущевку», то вполне можно составить проект перепланировки, воспользовавшись помощью дизайнера. Он отобразит на схеме новое расположение комнат.
Подробнее о современном проектировании трехкомнатных квартир вы узнаете из следующего видео.
Неудачные решения для планировки квартиры
Существует множество вариантов планировки, которые на эскизе выглядят привлекательно, но в реальности могут стать большой ошибкой. Мы приведем несколько примеров, чтобы помочь вам избежать казусов.

Слишком вытянутые узкие комнаты. В таких невозможно удобное разместить мебель, а человек будет чувствовать себя словно зажатым в тиски.

Маленькие окна. Подобное дизайнерское решение не только не позволяет дневному свету проникать в квартиру в достаточном количестве, но и визуально делает помещение меньше, поэтому планировка, например, однокомнатной квартиры в этом случае будет походить на тюремную камеру.

Низкие потолки. Нависающая над вашей головой изо дня в день махина из кирпича и бетона, согласитесь, ощущение не из приятных.

Крошечная кухня также станет отвратительным решением, особенно при планировке, положим, трехкомнатной квартиры (то есть достаточно просторного изначально помещения).
- Во-первых, кухня – рабочее и часто обеденное пространство, маленькие размеры элементарно лишают вас и вашу семью комфорта.
- Во-вторых, в квартирах от трех комнат и больше рекомендуется делать все комнаты, включая кухонное пространство, примерно одинакового размера, чтобы создать эффект свободной планировки, соблюсти плавила композиции и не создавать психологического давления на жильцов (чувство зажатости появляется, когда вы резко попадаете из просторного помещения в крайне тесное).

Проходные комнаты. Наличие комнат, соединенных единственной дверью, допустимо при открытой (при этом таким способом не должны соединяться больше двух помещений) или студийной планировке. Ни в коем случае не пробивайте двери напрямую из гостиной на кухню или в спальню.































Вообще не одной человеческой планировки! В первую очередь человек платит за квадратные метры! Куда должна встать мебель ( желательно стандартная » прямоугольная она как правило ) затем нужно учитывать подход к той или иной мебели , диван, кровать, шкаф и ТД.
Из этого формируется комната ( или кухня или сан.узел) к комнатам тоже должен быть подход ( не большой, но удобный ) потому как хохлы, коридор ( тоже метры они денег тоже не малых стоят ) в добавок чем более сложнее форма помещения тем дороже стоит ремон! Подсказка самая простая фигура это прямоугольник или квадрат.
Хол в квартире 40-60 кв..метрах вообще вещь без полезная так как не для мебели, не для использования вообще не подходит ( то есть паразитная площадь!! Которую нужно купить , затем отремонтировать! И не использовать!!!)